5 Ảnh

Cần bán căn hộ 2PN dự án Hà Đô Centrosa Garden – 86m² – Tầng cao view đẹp giá tốt

200 Đường 3 tháng 2, Phường Hòa Hưng, TP. Hồ Chí Minh

9.3 tỷ ~ 108.1 triệu/m²
Diện tích 86 m²
Phòng ngủ 2
WC 2

Mô tả chi tiết

Bán căn hộ tại Hà Đô Centrosa Garden, trung tâm Quận 10, ngay vòng xoay Dân Chủ.

  • Diện tích: 86m² | Thiết kế: 2PN–2WC | Tầng cao
  • Nội thất: Cơ bản | View: Thoáng mát, yên tĩnh
  • Pháp lý: Sổ hồng riêng từng căn, sở hữu lâu dài
  • Tiềm năng đầu tư: Cho thuê ngay 22-24 triệu/tháng
  • Tiện ích: Hồ bơi cao cấp, khu gym đầy đủ thiết bị, vườn trên cao thư giãn, khu thương mại sầm uất | Kết nối: Vị trí trung tâm Quận 10, di chuyển nhanh đến Quận 1, gần BV Nhân dân 115, siêu thị lớn, ga Metro Dân Chủ
  • Giá bán: 9.3 tỷ (thương lượng mạnh cho khách thiện chí) | Hỗ trợ: Vay ngân hàng

Xem nhà linh hoạt 7h đến 21h. Liên hệ 0933.453.402 (Zalo) để xem nhà, nhận video thực tế, mặt bằng chi tiết và thông tin phí quản lý.

Thông tin chi tiết về căn hộ

📜 Pháp lý: Đã có Sổ
💼 Tình trạng tài sản: Nhà trống
🏦 Hỗ trợ vay ngân hàng:
🛋️ Tình trạng nội thất: Nhà trống
🏙️ Tầng: Cao
🏢 Phí quản lý: 14.500 đ/m²/tháng Không bao gồm
🛵 Phí gửi xe máy: 180.000 đ/tháng/xe
🚗 Phí gửi ô tô: 1.650.000 đ/tháng/xe
🐾 Nội quy về thú cưng: Không cho phép
🆔 Mã tin CHCC-B-BVVy
📅 Ngày đăng: 19-01-2026
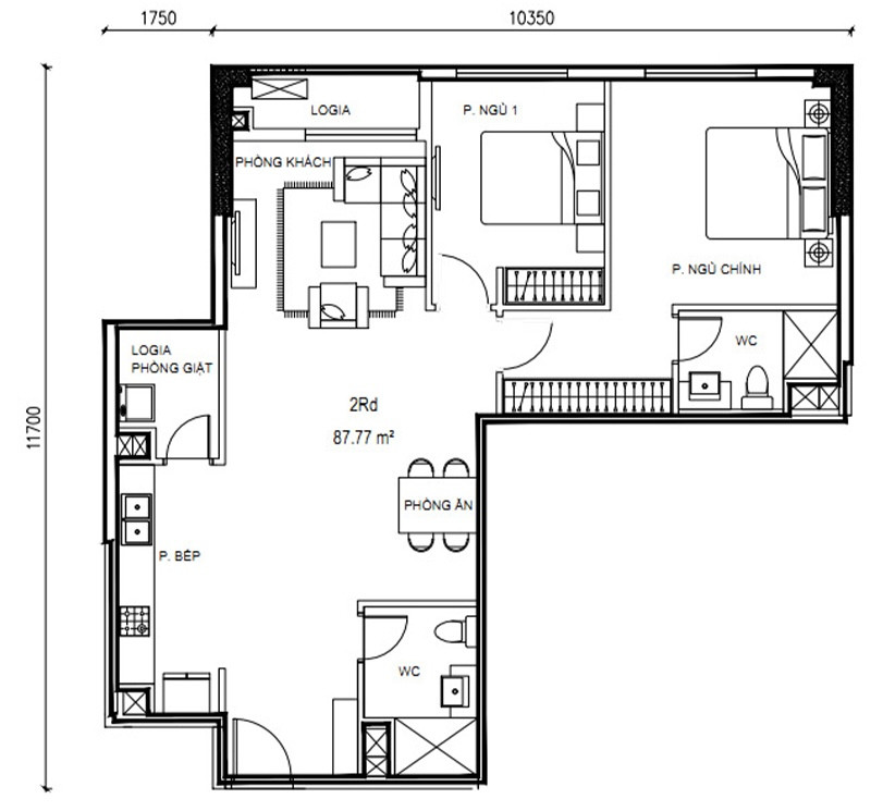
🏠 Layout: Layout căn hộ 2 phòng ngủ 86m² toà Iris 3 dự án Hà Đô Centrosa Garden
🏠 Layout:
Layout căn hộ 2 phòng ngủ 86m² toà Iris 3 dự án Hà Đô Centrosa Garden

Công cụ giúp bạn lập kế hoạch tài chính chi tiết và đưa ra quyết định vay vốn thông minh.

Vay 70%

Lịch trả nợ chi tiết

Tiện ích lân cận dự án Hà Đô Centrosa Garden

Giao thông

Sân bay Tân Sơn Nhất ~6.8 km
Ga Sài Gòn (Hòa Hưng) ~1 km

Vui chơi & Giải trí

Công viên Lê Thị Riêng ~1.5 km
Nhà hát Hoà Bình ~300 m

Y tế

Bệnh viện Nhi Đồng 1 ~2.0 km
Bệnh viện Nhân dân 115 ~1.4 km
Bệnh viện Bình Dân ~500 m

Mua sắm & Giải trí

Vạn Hạnh Mall ~1.2 km
Siêu thị Vincom 3/2 ~100m

Biểu đồ biến động đơn giá

Giá phổ biến (Tháng gần nhất) --
Trung bình 12 tháng --
Biến động giá / 1 năm --

Lưu ý: Phân tích này dựa trên dữ liệu của website SmartBDS.vn. Các yếu tố khác như vị trí cụ thể, tầng, hướng, tình trạng nội thất chi tiết, pháp lý riêng của từng căn có thể ảnh hưởng đến giá trị thực tế và sự hấp dẫn của sản phẩm.

Vị trí bất động sản trên bản đồ

Các tin đăng tương tự

Lịch sử tìm kiếm

Danh sách yêu thích